管道在運轉時,浮球停在球碗底部,進行大量排氣,當管內空氣排完,水沖進閥內,經過球碗然后反應浮球,使浮球浮動關閉,管道在正常運轉時,如有少量氣體會集中到閥內到相當程度,閥內水位下降,浮球隨之下降,氣體從小孔排出。如水泵停止,隨時會產生負壓力,浮球隨時下降,進行大量吸氣確保管路安全。 KP-10型快速排氣閥
主要用途:
KP-10型快速排氣閥
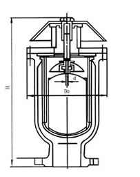
適用于工業介質為水的管路上,作為快速排除管道內氣體的設備,以提高輸送水設備的效率和保護管道不致變形破裂,是管道的必備之設備。閥為圓桶狀式閥體,共內部主要有不銹鋼浮球及塞頭。本閥裝設于泵埔出口處或送配水管線中,用以大量排除管道中的集結之空氣,以增進水管及抽水機使用效率,且與管內一旦出現負壓時,此閥能迅速吸入空氣,以保管線因負壓所產生損壞。 KP-10型快速排氣閥
主要特點:
1、能夠排除管道中的氣體,減少阻力節約能源。
2、當管道負壓時,本產品能快速自動吸入空氣防止管道破裂。
3、排氣能力是普通雙孔排氣閥多倍。
4、浮球托架為不銹鋼,使用壽命長,安全可靠。 KP-10型快速排氣閥
技術參數:
1.介質:清水
2.溫度:常溫
3.閥體:灰鑄鐵HT200
4.浮球與塞頭:不銹鋼
5.密封材料:丁晴橡膠
6.閥體試驗打壓:1.5mpa
7.浮球、密封試驗打壓:0.05-1.1MPA不漏水 KP-10型快速排氣閥 

法蘭連接尺寸
| 公稱通徑 |
D |
D1 |
D2 |
D3 |
H |
Z-φd |
| DMmm |
| 25 |
115 |
85 |
65 |
140 |
285 |
4-14 |
| 50 |
160 |
125 |
102 |
160 |
340 |
4-14 |
| 80 |
195 |
160 |
135 |
205 |
490 |
4-18 |
| 100 |
215 |
180 |
158 |
240 |
545 |
8-18 |
| 150 |
280 |
240 |
212 |
300 |
615 |
8-23 |
| 200 |
335 |
295 |
268 |
380 |
730 |
8-23 |
KP-10型快速排氣閥
每小時排氣量表
| 規格 |
25 |
50 |
80 |
100 |
150 |
200 |
| 立方米/小, 時 |
2-88 |
85-352 |
19-795 |
27-1145 |
41-1709 |
76-3179 |
中國.上玉集團有限公司是專業生產排氣閥的廠家,快速排氣閥訂貨須知:
一、①快速排氣閥產品名稱與型號②快速排氣閥口徑③快速排氣閥是否帶附件以便我們的為您正確選型。
二、若已經由設計單位選定的快速排氣閥型號,請按快速排氣閥型號直接向我公司銷售部訂購。
三、當使用的場合非常重要或環境比較復雜時,請您盡量提供設計圖紙和詳細參數,由我們上玉集團的專家為您審核把關。
感謝您訪問上玉集團公司網站,如有任何疑問您可以撥打我們的全國熱線電話:400-887-6587,我們一定會盡心盡力為您提供優質的服務。